info@tdtransmet.ru
Категория: Подкладки нераздельного скрепления

Подкладка Д-50

В наличии на складе Цена по запросу
Отправить запрос
Тип:Новый
ТипД-50
Вид скреплениякостыльное
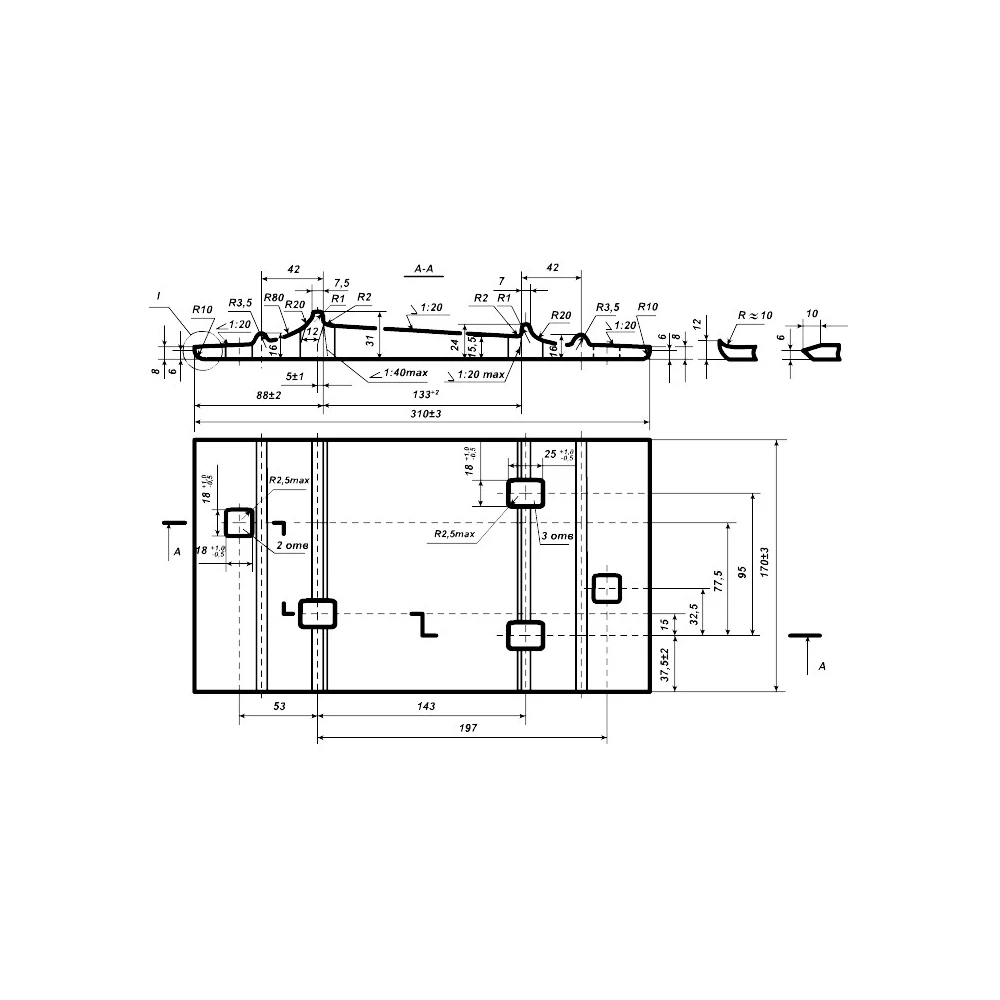
Длина, мм310
Ширина, мм170
Высота, мм31
Число отверстий5
Размеры отверстий, мм2 шт: 18×18; 3 шт: 25×18
Материалуглеродистая сталь Ст5, Ст4
Масса 1 шт.6,20 кг
Единица измерениятонна
Количество в 1 тонне161 шт
Для типа рельсР50
Путевой костыль (приобретается отдельно)16х16х165
Шпала (приобретается отдельно)деревянная

Среднее время доставки по Свердловской области: 7-10 дней

Наши логисты свяжутся с вами для уточнения деталей доставки

Подрельсовая подкладка Д-50 — это часть костыльного рельсового железнодорожного скрепления. Применяется в конструкциях ЖД пути с уклоном рельсовых нитей. Предназначена для костыльного скрепления железнодорожных рельс Р50 на деревянных шпалах с помощью путевого костыля 16х16х165. Профильные пластины подкладки изготавливаются из углеродистой стали марок Ст4, Ст5 по ГОСТ 380-2005.

Основные характеристики

  • Единица измерения — тонна
  • Масса — 6,20 кг
  • Количество в 1 тонне — 161 шт.

ГОСТ 7056-77 и 12135-75

На нашем сайте вы можете скачать ГОСТ 32694-2014 и ГОСТ 12135-75 для подкладок типа Д-50.

Чертеж/схема

чертеж рельсовой подкладки Д-50

Подкладки Д-50 по выгодным ценам в ТД «Трансмет»

Купить подкладку костыльного крепления Д50 по низкой цене с доставкой в Улан-Удэ вы можете на сайте Торгового Дома «Трансмет» прямо сейчас! Доставим в короткие сроки на Ваш объект или производство. Перевозку осуществляем собственным автотранспортом или оформляем железнодорожные грузоперевозки. При необходимости груз страхуется и сопровождается.

Торговый Дом «Трансмет» — Ваш надёжный поставщик рельсовых подкладок и других материалов ВСП. К нам обращаются и нам доверяют!

Наши преимущества:

  • Высокое качество продукции;
  • Низкие цены на весь ассортимент. С нами вы экономите свой бюджет;
  • Доставка в кротчайшие сроки (от 2 дней) по всей России и странам СНГ;
  • Высокий сервис и грамотные специалисты;
  • Возможность долгосрочного сотрудничества;
  • У нас вы можете не только купить подкладки под рельсы, но и оформить договор или заказать ремонт и обслуживание.

Свяжитесь с коммерческим отделом компании и мы поможем вам с выбором товара, а также рассчитать и оформить заявку!

Телефоны: +7 (343) 361-64-95, +7 (343) 361-64-78, 8 (800) 600-54-95 (бесплатный для регионов)
E-mail: info@tdtransmet.ru

Оплата и доставка продукции

Мы предлагаем свои услуги по доставке различных грузов для железных дорог, включая железнодорожные рельсы, шпалы и другие строительные материалы.

Мы обладаем собственным транспортом, который позволяет нам осуществлять доставку грузов быстро, качественно и в срок. Наша компания осуществляет доставку продукции по всей территории России и ближнего зарубежья.

Варианты доставки

  • Доставка автотранспортом по РФ.
  • Доставка железнодорожным составом.
  • Отправка ТК по запросу. Мы сотрудничаем со всеми сертифицированными транспортными компаниями.

Наша компания заботится о комфорте и безопасности клиентов, поэтому мы предлагаем различные виды транспорта для доставки. Не важно, нужно ли вам доставить грузы на большой расстояние или через город, мы предоставим вам наилучшее решение для вашего бизнеса.

624002, Россия, Свердловская область, г. Арамиль, ул. Гарнизон, 3В